Информационный портал "ГазетаНоворос.ру"
16 января, Новороссийск -0,4°
Курс ЦБ 78,53 91,81

Мы используем cookie.  Оставаясь на сайте, вы соглашаетесь с тем, что мы обрабатываем ваши персональные данные с использованием метрик Яндекс Метрика,top.mail.ru, LiveInternet.

Новости 0+

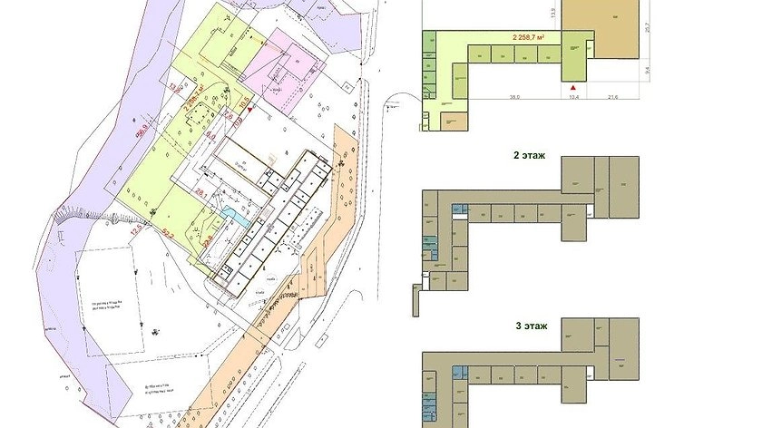
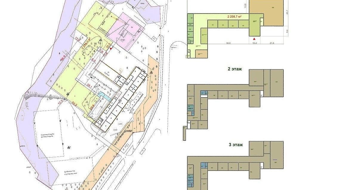
Школа в пригороде Новороссийска получит новую пристройку на 470 мест

Власти Новороссийска приступили к проектированию масштабной пристройки к школе №31 в посёлке Глебовский. 

Главная картинка новости: Школа в пригороде Новороссийска получит новую пристройку на 470 мест
Источник фото: Неизвестно

Новый учебный блок рассчитан на 470 дополнительных мест и позволит создать отдельный корпус для начальных классов.

Как сообщил заместитель главы города Роман Карагодин, на отведённом под строительство участке уже ведутся инженерные изыскания. Архитекторы работают над поэтажными планами и компоновкой помещений в соответствии с техническим заданием. 

Проект включает в себя не только стандартные учебные кабинеты, спортивный и актовый залы, но и собственную столовую с пищеблоком, а также специализированные помещения для занятий творчеством, музыкой, трудом и моделированием.

Полный цикл проектирования, включая прохождение государственной экспертизы, планируется завершить к концу 2026 года. Это станет важным шагом в решении проблемы нехватки учебных мест в активно развивающемся пригороде Новороссийска, пишет “Новороссийский рабочий”.

Новости партнеров